image
Image
{{user.name}}
IOO% HOTEL SPECIALS
EN
GR

Hotel Amira Serenity Suites 5* Rethymno

Contact Person: Andreadakis Evagelos

Company: Andreadakis Evagelos

Photographer: null

Website: http://null

Email: vagandreadakis@gmail.com

Phone: 6985/428521

DESCRIPTION

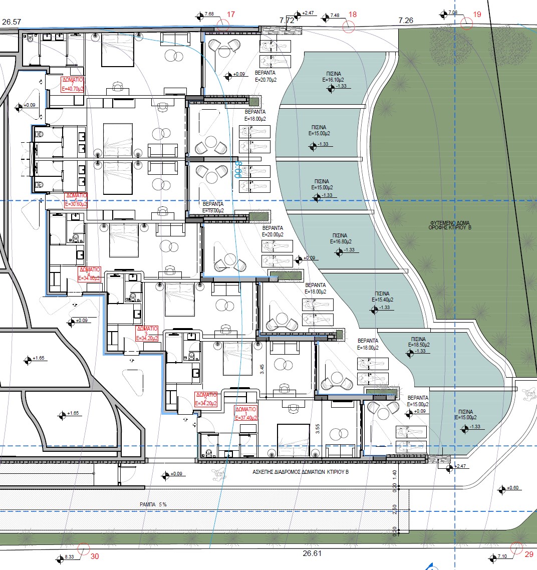
Amira Serenity Suites is a five-star hotel and a nearby extension of the award-winning “AMIRA LUXURY RESORT & SPA”. It is being developed on a plot of land within a semi-urban setlement, with a total area of 5,394.51 sq.m., located in Adelianos Kampos, in the Municipality of Rethymno, along the 8th kilometer of the Old National Road (P.E.O.) – E90 (municipal road segment within the setlement). The property belongs to the company ARION AXTE.

The plot is a narrow, elongated site measuring 160.00 x 32.00 meters, with a gentle north-facing slope of 5.80 meters.

The design envisions a hotel of 44 rooms and suites, each with a private pool ranging from 15.00 to 19.00 sq.m. The building complex is highly articulated in terms of massing, comprising five structures, both single- and two-story, with some areas semi-subterranean and green roofs. Curved triangular openings in the canopies allow natural light to illuminate the northern-facing verandas, while vegetation cascades from the planted rooftops. Above the third level, a lightweight structure made of perforated aluminum sheets, with a total area of 110.00 sq.m., forms a pergola intended for yoga sessions and wellness programs. This area offers magnificent views over the planted rooftops and the sea in the distance.

The first building is a two-story structure with significant voids and a canopy supported by slender metal columns. This building houses the reception area, restaurant, and bar. Below it, a semi-hidden underground garage provides 60 parking spaces to serve the hotel.

The overall architectural language is minimal and flowing, characterized by soft, warm tones. Amira Serenity Suites aims to create a green oasis within the evolving landscape of Adelianos Kampos — a sanctuary of quiet luxury that respects its environment while delivering the highest standard of modern hospitality.

PROJECT CONTRIBUTORS:

ARCHITECTURAL DESIGN: "ARCHITECTURAL" ANDREADAKIS BAKA & ASSOCIATES
STUDY MANAGER & SUPERVISOR: ANDREADAKIS EVANGELOS
STATIC DESIGN: VASSILAKIS GEORGE
MECHANICAL DESIGN: KOUKLAKIS LEFTERS

PHOTO GALLERY

CLOSE
SEND MESSAGE
Thank you for your message. The Exhibitor will be informed and reply to you the soonest possible.
Ευχαριστούμε για το μήνυμά σας. Ο Εκθέτης θα ενημερωθεί και θα σας απαντήσει το συντομότερο.
Thank you for your message. The Visitor will be informed and reply to you the soonest possible.
Ευχαριστούμε για το μήνυμά σας. Ο Επισκέπτης θα ενημερωθεί και θα σας απαντήσει το συντομότερο.
HOTELIER WORKSHOP PARTICIPATION
CONFIRM PARTICIPATION

Are you sure you wish to attend the below Workshop?

Please confirm your participation to the following.

{{workshop.name_en}}?

{{workshop.day}}

{{workshop.start_hour}}:{{workshop.start_minutes}} - {{workshop.end_hour}}:{{workshop.end_minutes}}
YOUR WORKSHOP REGISTRATION
YOUR REGISTRATION IS CONFIRMED

Thank you for confirming your participation in this Workshop. Please download your ticket by clicking here.

Thank you for confirming your participation.

YOUR REGISTRATION AT IOO% HOTEL SHOW

Thank you for your interest in IOO% Hotel Show! Please click on the confirmation link we have sent at your email to complete your registration. Upon completion, you will be able to download your entrance badge, schedule appointments with exhibitors, and register for our workshops.


Stay updated with IOO% Hotel Show news by following us on Social Media: