image
Image
{{user.name}}
IOO% HOTEL SPECIALS
EN
GR

Hotel Ideon

Contact Person: Andreadakis Evagelos

Company: Andreadakis Evagelos

Photographer: Fragomanolakis Nikos

Website: http://www.hotelideon.gr

Email: vagandreadakis@gmail.com

Phone: 6985/428521

DESCRIPTION

The Ideon emblematic hotel, one of the first hotels in Rethymno due to its location in the urban planning position of the Venetian City. With a view of the port and the sea.
It was built in the early 70s. It is a family business of the "Birlirakis" family, created by the brothers Nikos and Manolis in the difficult years before the organized tourist movement.

Fifty years later, the systematic Architectural modernization at all levels and its radical Static reinforcement were decided upon.
Important for the building due to its size and location is the systematic multi-year cooperation with the local Archaeology and the Central Archaeological Council.
After five years of completion of the works, it was put into operation in 2014.

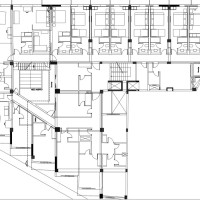
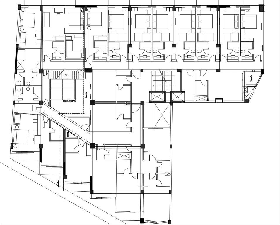
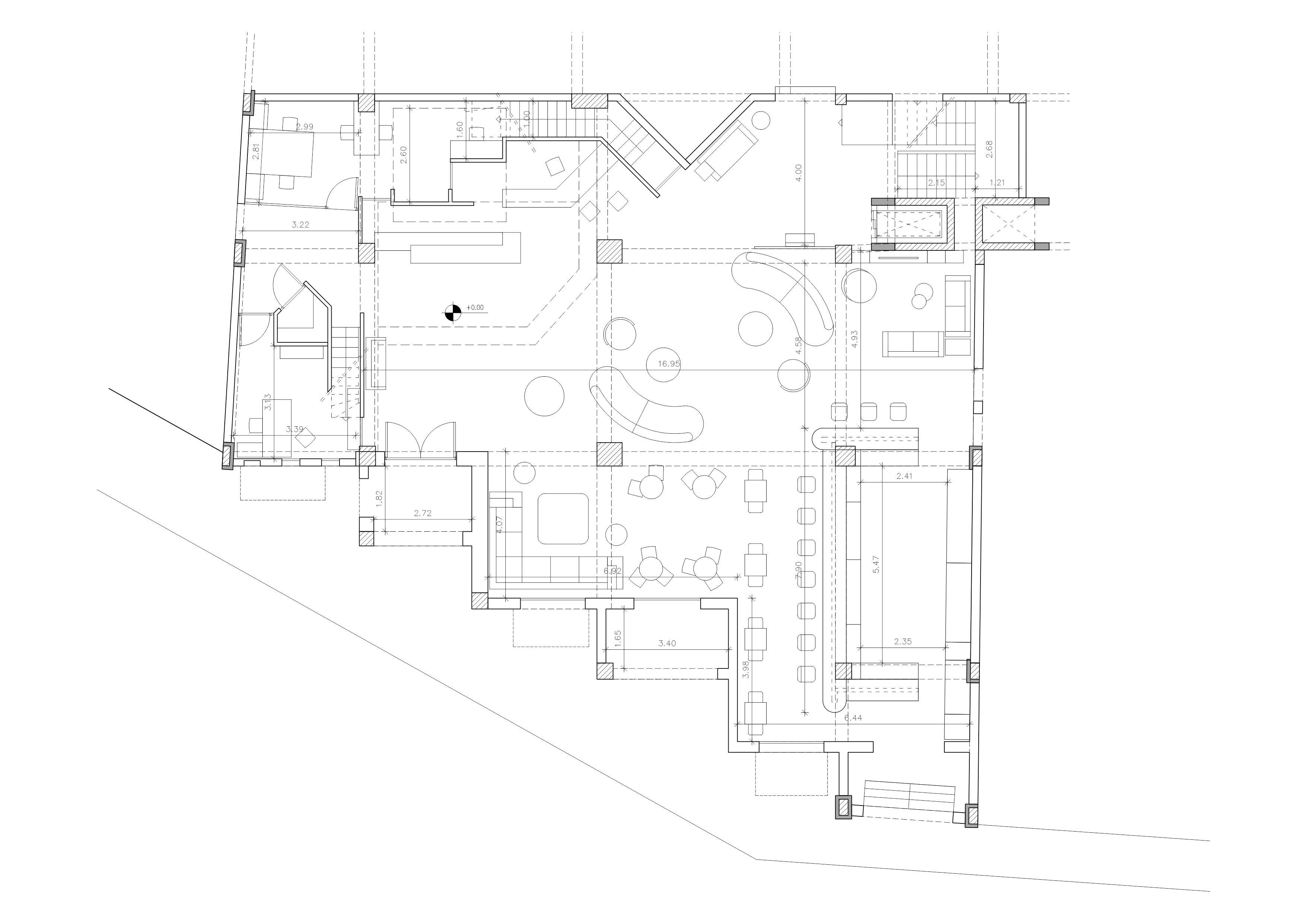
The IDEON hotel is an urban hotel, consisting of five floors, a ground floor with common reception and dining areas and four floors with rooms. In 2018, the study of radical Architectural renovation and modernization and Static and Earthquake Protection was approved.

PHOTO GALLERY

CLOSE
SEND MESSAGE
Thank you for your message. The Exhibitor will be informed and reply to you the soonest possible.
Ευχαριστούμε για το μήνυμά σας. Ο Εκθέτης θα ενημερωθεί και θα σας απαντήσει το συντομότερο.
Thank you for your message. The Visitor will be informed and reply to you the soonest possible.
Ευχαριστούμε για το μήνυμά σας. Ο Επισκέπτης θα ενημερωθεί και θα σας απαντήσει το συντομότερο.
HOTELIER WORKSHOP PARTICIPATION
CONFIRM PARTICIPATION

Are you sure you wish to attend the below Workshop?

Please confirm your participation to the following.

{{workshop.name_en}}?

{{workshop.day}}

{{workshop.start_hour}}:{{workshop.start_minutes}} - {{workshop.end_hour}}:{{workshop.end_minutes}}
YOUR WORKSHOP REGISTRATION
YOUR REGISTRATION IS CONFIRMED

Thank you for confirming your participation in this Workshop. Please download your ticket by clicking here.

Thank you for confirming your participation.

YOUR REGISTRATION AT IOO% HOTEL SHOW

Thank you for your interest in IOO% Hotel Show! Please click on the confirmation link we have sent at your email to complete your registration. Upon completion, you will be able to download your entrance badge, schedule appointments with exhibitors, and register for our workshops.


Stay updated with IOO% Hotel Show news by following us on Social Media: