Amira Serenity Suites is a five-star hotel and a nearby extension of the award-winning “AMIRA LUXURY RESORT & SPA”. It is being developed on a plot of land within a semi-urban settlement, with a total area of 5,394.51 sq.m., located in Adelianos Kampos, in the Municipality of Rethymno, along the 8th kilometer of the Old National Road (P.E.O.) – E90 (municipal road segment within the settlement). The property belongs to the company ARION AXTE.
The plot is a narrow, elongated site measuring 160.00 x 32.00 meters, with a gentle north-facing slope of 5.80 meters.
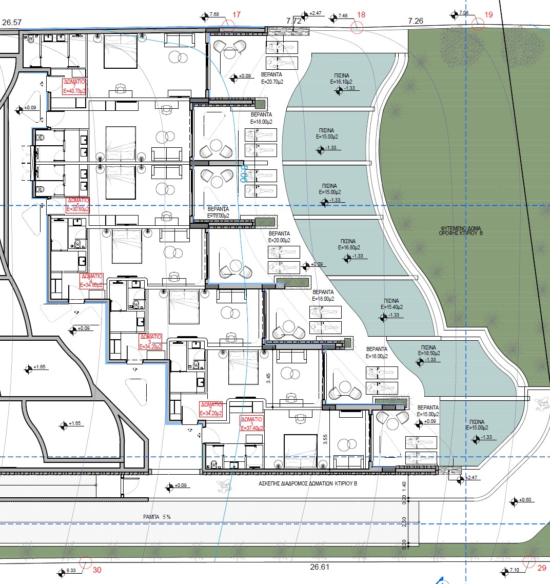
The design envisions a hotel of 44 rooms and suites, each with a private pool ranging from 15.00 to 19.00 sq.m. The building complex is highly articulated in terms of massing, comprising five structures, both single- and two-story, with some areas semi-subterranean and green roofs.
Curved triangular openings in the canopies allow natural light to illuminate the northern-facing verandas, while vegetation cascades from the planted rooftops. Above the third level, a lightweight structure made of perforated aluminum sheets, with a total area of 110.00 sq.m., forms a pergola intended for yoga sessions and wellness programs. This area offers magnificent views over the planted rooftops and the sea in the distance.
The first building is a two-storey structure with significant voids and a canopy supported by slender metal columns. This building houses the reception area, restaurant, and bar. Below it, a semi-hidden underground garage provides 60 parking spaces to serve the hotel.
The overall architectural language is minimal and flowing, characterized by soft, warm tones.
Amira Serenity Suites aims to create a green oasis within the evolving landscape of Adelianos Kampos — a sanctuary of quiet luxury that respects its environment while delivering the highest standard of modern hospitality.

ARCHITECTURAL DESIGN: "ARCHITECTURAL" ANDREADAKIS BAKA & ASSOCIATES
STUDY MANAGER & SUPERVISOR: ANDREADAKIS EVANGELOS
STATIC DESIGN: VASSILAKIS GEORGE
MECHANICAL DESIGN: KOUKLAKIS LEFTERS